Villa a schiera in vendita

Chiuduno, Via Papa Giovanni XXIII
€ 200.000
5 locali 5 locali
148 Mq 148 Mq
3 bagni 3 bagni

Villa a schiera in vendita

Chiuduno, Via Papa Giovanni XXIII

Descrizione annuncio

CHIUDUNO:

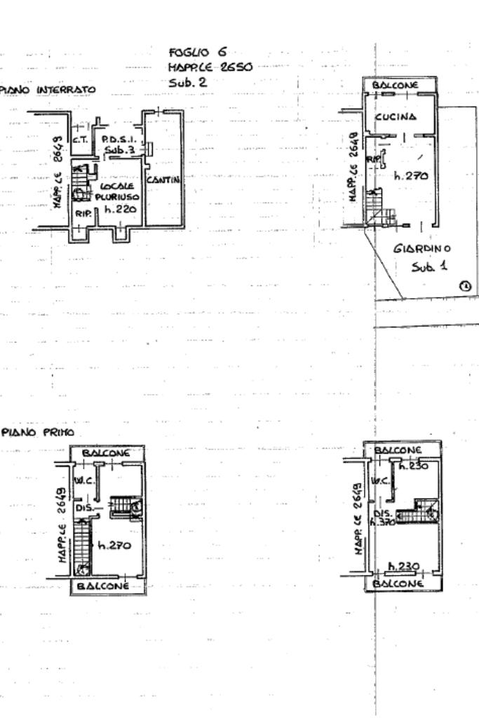
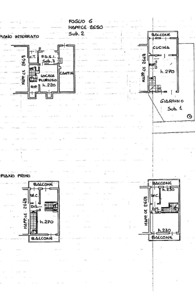
In contesto residenziale tranquillo, proponiamo villa a schiera con ingresso indipendente, disposta su tre livelli fuori terra oltre piano interrato, dotata di giardino privato ideale per momenti di relax all’aperto.

L’abitazione si sviluppa come segue:
• Piano terra: luminoso soggiorno con cucina a vista (o separabile), con accesso diretto al giardino.
• Piano primo: due camere da letto e bagno finestrato.
• Piano secondo: due ulteriori camere da letto e secondo bagno.
• Piano interrato: ampia taverna con camino, lavanderia, cantina e box singolo collegato internamente.

La soluzione è rifinita con serramenti in legno con doppio vetro, è dotata di aria condizionata, riscaldamento autonomo e comporta poche spese condominiali. Ogni piano dell'immobile dispone di due balconi.

Ideale per famiglie alla ricerca di spazi ampi, indipendenza e comfort in una soluzione pronta da vivere.

Ogni agenzia ha un proprio titolare ed è autonoma. Tali informazioni non costituiscono vincolo contrattuale.

Mostra tutto

Nelle vicinanze

Trasporto pubblico Trasporto pubblico
stazione di Grumello del Monte
stazione di Grumello del Monte
2,3 Km
Chiuduno
Chiuduno
240 m
Ricariche auto elettriche Ricariche auto elettriche
LIDL Grumello del Monte
2,4 Km
Scuole Scuole
Scuola Primaria "Paolo Ravasio"
2,5 Km
Scuola secondaria di I grado "L. Signorelli"
2,5 Km
Scuola Primaria "Papa Giovanni XXIII"
2,6 Km
Scuole
3,0 Km
Farmacia Farmacia
Farmacia
2,7 Km
Supermercati Supermercati
Conad
2,3 Km
Bar Bar
Bar
320 m
Nikita
2,1 Km
Erli pancaffè
2,5 Km
Ristoranti Ristoranti
Pizzeria Sale e pepe
270 m
Ristorante Sabi
710 m
Mi gioco la pizza
970 m
Hosteria del Vapore
1,1 Km
Ubaldo
1,9 Km
Mostra tutto

Caratteristiche

Rif.:
61156615
Piano:
Terra con giardino di 2
Totale piani:
2
Box:
1
Balconi:
2
Terrazzi:
2
Mostra tutto
Prezzo Prezzo
€ 200.000
Rata mutuo Rata mutuo
€ 942 / mese
Spese annue Spese annue
€ 500
Proponi il tuo prezzoProponi il tuo prezzo

Classe Energetica

G
G
G
G
G
G
G
G
G
Anno di costruzione:
1980
Riscaldamento:
Autonomo
Tipo impianto:
A radiatori
Tipo alimentazione:
Metano

Ti interessa visionare l'immobile?

Fissa un appuntamento  Fissa un appuntamento

Richiedi informazioni

Clicca su Leggi per aprire l'informativa
* Questi campi sono obbligatori

Calcola il tuo mutuo

Semplice e senza impegno
Anticipo

( % )
Mutuo

( % )

pochi semplici passi

inserisci i tuoi dati
Questionario completato
Grazie per aver richiesto un appuntamento senza impegno con un nostro Consulente del Credito e Assicurativo.

Hai inserito correttamente tutti i dati necessari e a breve riceverai una e-mail con un link da convalidare per inviare i tuoi dati.
Affiliato
Tecno Bolgare Srl
Via Papa Giovanni XXIII, 1/B 24060 Bolgare (BG)

Il nostro staff


  • Ilenia Dadei
    Affiliata

  • Daniela Ghirardi
    Coordinatrice

  • Sara Gualandris
    Collaboratrice

  • Paolo Plebani
    Affiliato

  • Elena Rho
    Collaboratrice

  • Amardeep Singh
    Collaboratore

  • Cezara Consuela Istrate
    Collaboratrice
Via Papa Giovanni XXIII, 1/B 24060 Bolgare (BG)
Zona: Bolgare-Telgate-Chiuduno
Mostra su mappa
Affiliato
Tecno Bolgare Srl
Via Papa Giovanni XXIII, 1/B 24060 Bolgare (BG)

2026 Tecnocasa Franchising S.p.A. - P. IVA 08365160152 - Via Monte Bianco 60/A 20089 Rozzano (MI). Ogni agenzia ha un proprio titolare ed è autonoma. Privacy policy | Policy utilizzo | Cookie policy