Quadrilocale in vendita

Bolgare, Via Milano
€ 270.000
4 locali 4 locali
113 Mq 113 Mq
2 bagni 2 bagni

Quadrilocale in vendita

Bolgare, Via Milano

Descrizione annuncio

BOLGARE: Canitere in partenza!

Crea la casa dei tuoi sogni.

Questa nuova costruzione a Bolgare offre un immobile moderno e spazioso, ideale per chi cerca comfort e design contemporaneo.

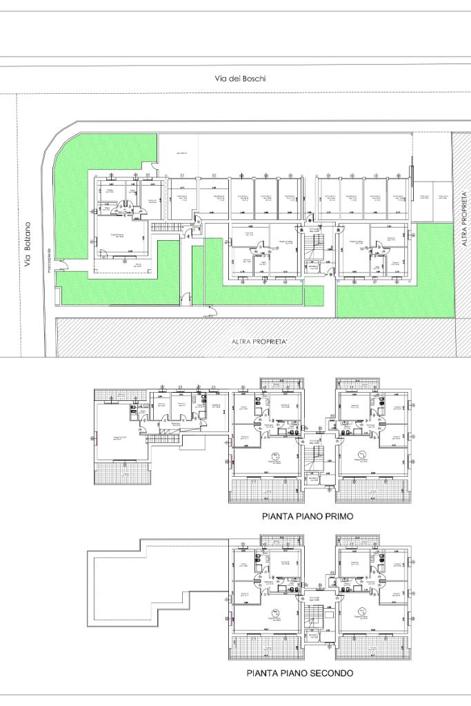
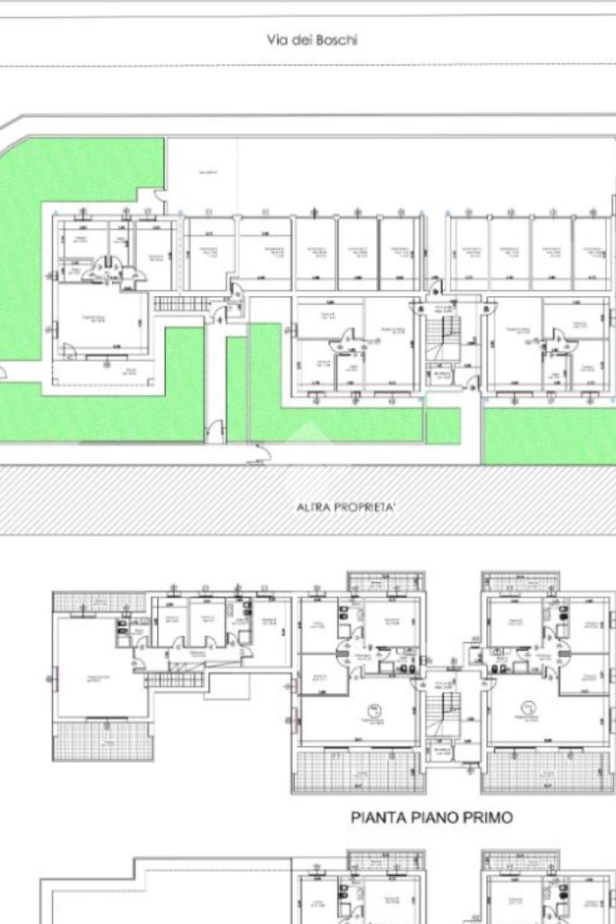
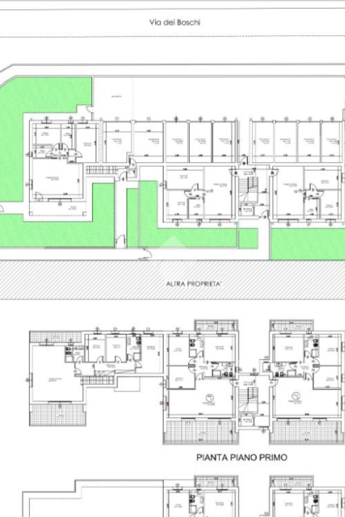
L'appartamento si sviluppa al piano primo e include tre camere da letto, tutte ampie e luminose, perfette per ospitare una famiglia o per essere utilizzate come stanze multiuso. Camera matrimoniale completa di balcone esclusivo.

La zona giorno è caratterizzata da un ampio open space che unisce cucina e soggiorno, creando un ambiente moderno e funzionale, perfetto per il relax e la convivialità con accesso diretto a terrazzo di circa 30 mq.

La cucina a vista consente di sfruttare al meglio lo spazio, mantenendo un'atmosfera aperta e ariosa.

L'appartamento dispone di due eleganti bagni, uno ad uso della zona notte e l'altro nella zona giorno, dotati di finiture moderne e di alta qualità.

La soluzione è dotata di impianti fotovoltaici, i serramenti esterni, del tipo monoblocco, saranno realizzati in pvc rigido bianco resistente agli urti con predisposizione zanzariere. Quadruplo vetro bassoemissimo (disperde poca energia termica). Sistema oscuramento con tapparella 'Arialuce' di colore grigio che permettono di regolare a piacimento la luce e l'aria all'interno dell'appartamento. Avvolgimento e oscuramento automatizzato.

Riscaldamento autonomo a pavimento.

Predisposizione impianto di raffrescamento e allarme.

Vivi la tua casa come l'hai sempre desiderata.

Gli acquirenti hanno anche la possibilità di scegliere il capitolato, personalizzando così i materiali e le finiture per soddisfare i propri gusti e necessità.

Un altro punto di forza dell'immobile è il box auto fuori terra.

La costruzione è dotata di ascensore e risponde ai più alti standard di qualità e risparmio energetico.

La posizione, tranquilla e ben servita, consente di raggiungere facilmente i principali servizi e le vie di comunicazione, rendendo questo appartamento un'opportunità imperdibile per chi cerca un'abitazione moderna e personalizzabile.

Non perdere l'opportunità di scegliere la tua nuova casa a Bolgare!

Contattaci per maggiori informazioni e per programmare una visita in ufficio.

Ogni agenzia ha un titolare proprio ed è autonoma. Le informazioni presenti non costituiscono vincolo contrattuale.

Mostra tutto

Nelle vicinanze

Ricariche auto elettriche Ricariche auto elettriche
Bolgare Facchinetti | RESSOLAR
310 m
G.M.B.
2,3 Km
Scuole Scuole
Scuola Primaria Papa Giovanni XXIII
2,0 Km
Scuola primaria di Cavernago
3,0 Km
Ospedali Ospedali
Ospedale di Calcinate "F.M. Passi"
1,8 Km
Supermercati Supermercati
MD Market
1,7 Km
Ristoranti Ristoranti
Giropizza
2,8 Km
Pollicino
2,9 Km
Mostra tutto

Caratteristiche

Rif.:
60997408
Piano:
1 di 2 con ascensore (Piano medio)
Box:
1
Balconi:
1
Terrazzi:
1
Camere da letto:
3
Mostra tutto
Prezzo Prezzo
€ 270.000
Rata mutuo Rata mutuo
€ 1.272 / mese
Spese annue Spese annue
€ 0
Proponi il tuo prezzoProponi il tuo prezzo
Immobile valutato con T·Valuta

Classe Energetica

A4
A4
A4
A4
A4
A4
A4
A4
A4
EP globale non rinnovabile:
0.00 kW h/m² anno
EP globale rinnovabile:
0.00 kW h/m² anno
EP invernale del fabbricato:
EP estiva del fabbricato:
Anno di costruzione:
2025
Riscaldamento:
Autonomo
Tipo impianto:
A pavimento
Tipo alimentazione:
Metano

Ti interessa visionare l'immobile?

Fissa un appuntamento  Fissa un appuntamento

Richiedi informazioni

Clicca su Leggi per aprire l'informativa
* Questi campi sono obbligatori

Calcola il tuo mutuo

Semplice e senza impegno
Anticipo

( % )
Mutuo

( % )

pochi semplici passi

inserisci i tuoi dati
Questionario completato
Grazie per aver richiesto un appuntamento senza impegno con un nostro Consulente del Credito e Assicurativo.

Hai inserito correttamente tutti i dati necessari e a breve riceverai una e-mail con un link da convalidare per inviare i tuoi dati.
Affiliato
Tecno Bolgare Srl
Via Papa Giovanni XXIII, 1/B 24060 Bolgare (BG)

Il nostro staff


  • Ilenia Dadei
    Affiliata

  • Daniela Ghirardi
    Coordinatrice

  • Sara Gualandris
    Collaboratrice

  • Paolo Plebani
    Affiliato

  • Elena Rho
    Collaboratrice

  • Amardeep Singh
    Collaboratore

  • Cezara Consuela Istrate
    Collaboratrice
Via Papa Giovanni XXIII, 1/B 24060 Bolgare (BG)
Zona: Bolgare-Telgate-Chiuduno
Mostra su mappa
Affiliato
Tecno Bolgare Srl
Via Papa Giovanni XXIII, 1/B 24060 Bolgare (BG)

2026 Tecnocasa Franchising S.p.A. - P. IVA 08365160152 - Via Monte Bianco 60/A 20089 Rozzano (MI). Ogni agenzia ha un proprio titolare ed è autonoma. Privacy policy | Policy utilizzo | Cookie policy