Trilocale in vendita

Bolgare, Via Milano
€ 210.000
Prezzo aggiornato
3 locali 3 locali
85 Mq 85 Mq
2 bagni 2 bagni

Trilocale in vendita

Bolgare, Via Milano

Descrizione annuncio

BOLGARE: Cantiere in partenza!

Crea la casa dei tuoi sogni

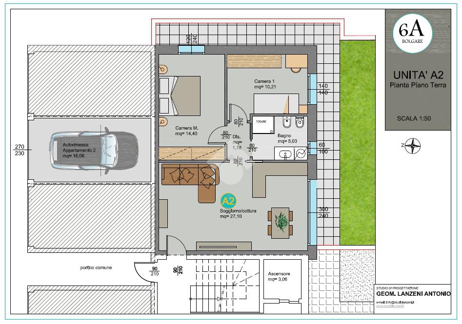
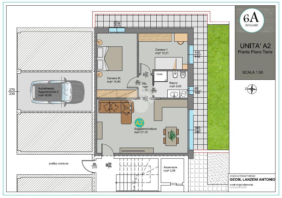
Proponiamo in vendita un moderno appartamento trilocale a piano terra con giardino esclusivo, situato all'interno di un elegante complesso residenziale di nuova costruzione.

Questo immobile offre un ampio giardino privato, due bagni e un comodo box auto fuori terra, perfetto per soddisfare le esigenze di ogni famiglia.

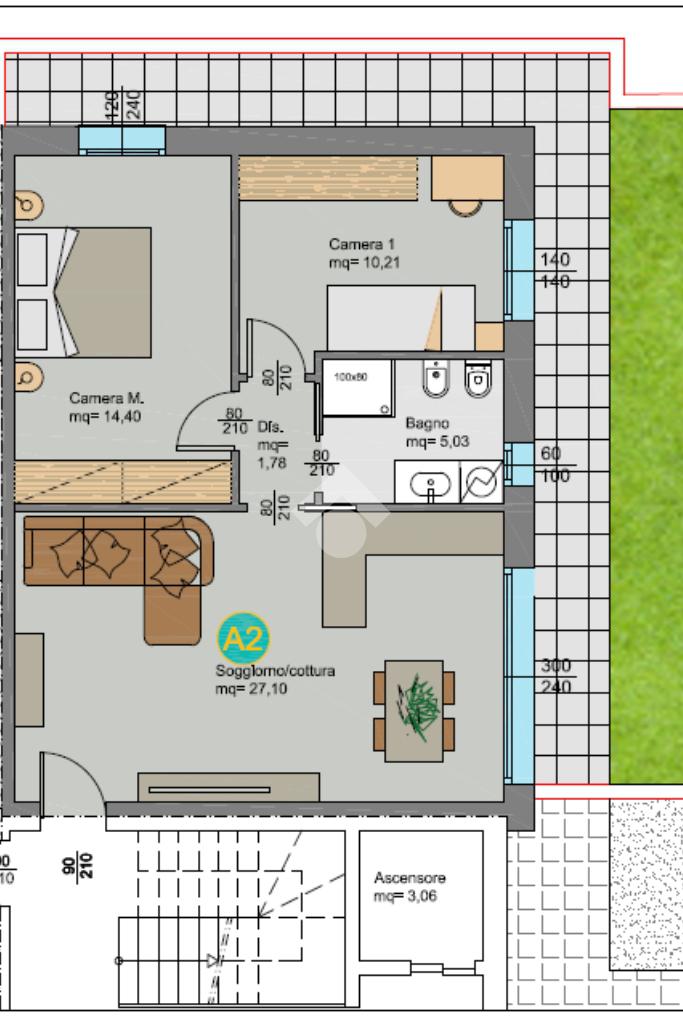
Luminoso soggiorno open space, con cucina a vista, ideale per godere di un ambiente conviviale e funzionale.

Camera matrimoniale spaziosa, con accesso diretto al giardino

Seconda camera: perfetta per bambini, ospiti o da adibire a studio.

Due bagni: uno principale con doccia e uno di servizio, entrambi dotati di finiture moderne e pratiche.

Giardino privato ideale per il relax all'aperto.

Box auto fuori terra comodo e spazioso, con facile accesso.

Ottima efficienza energetica, grazie all'uso di tecnologie moderne che garantiscono risparmio e comfort in ogni stagione.

La soluzione è dotata di impianti fotovoltaici, i serramenti esterni, del tipo monoblocco, saranno realizzati in pvc rigido bianco resistente agli urti con predisposizione zanzariere. Quadruplo vetro bassoemissimo (disperde poca energia termica). Sistema oscuramento con tapparella 'Arialuce' di colore grigio che permettono di regolare a piacimento la luce e l'aria all'interno dell'appartamento. Avvolgimento e oscuramento automatizzato.

Riscaldamento autonomo a pavimento.

Predisposizione impianto di raffrescamento e allarme.


Vivi la tua casa come l'hai sempre desiderata.

Con la possibilità di personalizzare il capitolato, avrai la libertà di scegliere ogni dettaglio, dalla cucina alla pavimentazione, creando un ambiente che rispecchi perfettamente il tuo stile di vita.

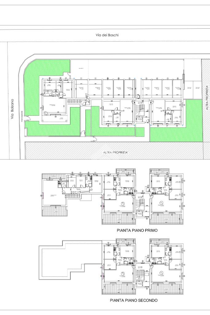
Il complesso, formato da 6 unità abitative, garantisce privacy e tranquillità, ma è allo stesso tempo a pochi passi dai principali servizi del paese.


Non perdere l'opportunità di scegliere la tua nuova casa a Bolgare!

Contattaci per maggiori informazioni e per programmare una visita in ufficio.

Ogni agenzia ha un titolare proprio ed è autonoma. Le informazioni presenti non costituiscono vincolo contrattuale.

Mostra tutto

Nelle vicinanze

Ricariche auto elettriche Ricariche auto elettriche
Bolgare Facchinetti | RESSOLAR
310 m
G.M.B.
2,3 Km
Scuole Scuole
Scuola Primaria Papa Giovanni XXIII
2,0 Km
Scuola primaria di Cavernago
3,0 Km
Ospedali Ospedali
Ospedale di Calcinate "F.M. Passi"
1,8 Km
Supermercati Supermercati
MD Market
1,7 Km
Ristoranti Ristoranti
Giropizza
2,8 Km
Pollicino
2,9 Km
Mostra tutto

Caratteristiche

Rif.:
60996679
Piano:
Terra con giardino di 2 con ascensore
Totale piani:
2
Box:
1
Camere da letto:
2
Arredamento:
Assente
Mostra tutto
Prezzo Prezzo
€ 210.000
Rata mutuo Rata mutuo
€ 968 / mese
Spese annue Spese annue
€ 0
Proponi il tuo prezzoProponi il tuo prezzo
Immobile valutato con T·Valuta

Classe Energetica

A4
A4
A4
A4
A4
A4
A4
A4
A4
EP globale non rinnovabile:
0.00 kW h/m² anno
EP globale rinnovabile:
0.00 kW h/m² anno
EP invernale del fabbricato:
EP estiva del fabbricato:
Anno di costruzione:
2025
Riscaldamento:
Autonomo
Tipo impianto:
A pavimento
Tipo alimentazione:
Altro

Prezzo ridotto di €1 (9%%)

Ti interessa visionare l'immobile?

Fissa un appuntamento  Fissa un appuntamento

Richiedi informazioni

* Questi campi sono obbligatori

Calcola il tuo mutuo

Semplice e senza impegno
Anticipo

( % )
Mutuo

( % )

pochi semplici passi

inserisci i tuoi dati
Questionario completato
Grazie per aver richiesto un appuntamento senza impegno con un nostro Consulente del Credito e Assicurativo.

Hai inserito correttamente tutti i dati necessari e a breve riceverai una e-mail con un link da convalidare per inviare i tuoi dati.
Affiliato
Tecno Bolgare Srl
Via Papa Giovanni XXIII, 1/B 24060 Bolgare (BG)

Il nostro staff


  • Ilenia Dadei
    Affiliata

  • Daniela Ghirardi
    Coordinatrice

  • Sara Gualandris
    Collaboratrice

  • Paolo Plebani
    Affiliato

  • Cezara Consuela Istrate
    Collaboratrice
Via Papa Giovanni XXIII, 1/B 24060 Bolgare (BG)
Zona: Bolgare-Telgate-Chiuduno
Mostra su mappa
Affiliato
Tecno Bolgare Srl
Via Papa Giovanni XXIII, 1/B 24060 Bolgare (BG)

2025 Tecnocasa Franchising S.p.A. - P. IVA 08365160152 - Via Monte Bianco 60/A 20089 Rozzano (MI). Ogni agenzia ha un proprio titolare ed è autonoma. Privacy policy | Policy utilizzo | Cookie policy